Die historische Walzmühle in Ludwigshafen vereint eindrucksvoll Industriearchitektur mit moderner Arbeitswelt. Einst eine der größten Mühlen der Welt, wurde das denkmalgeschützte Gebäudeensemble in den 1990er-Jahren aufwendig saniert, restauriert und durch zeitgemäße Gebäudeteile ergänzt. Dabei wurde bewusst auf die Verbindung historischer Elemente mit modernen Akzenten gesetzt, wodurch ein einzigartiges Arbeitsumfeld mit Charakter entstanden ist.
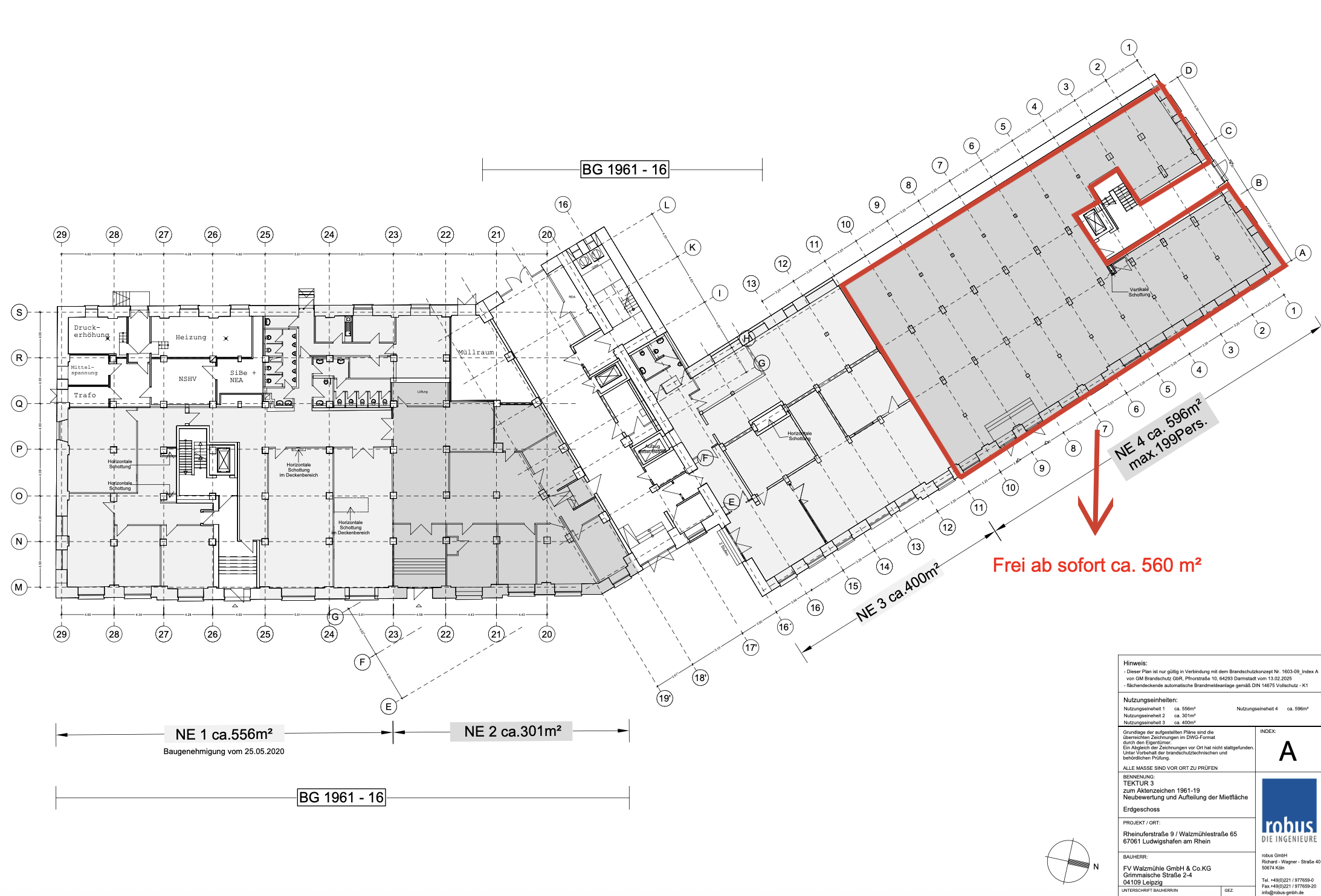
Derzeit stehen im Erdgeschoss ca. 570 m² Bürofläche im Rohbauzustand zur Verfügung. Diese Fläche bietet dem künftigen Nutzer maximale Gestaltungsfreiheit und kann individuell nach den eigenen Anforderungen und Vorstellungen ausgebaut werden. Der Ausbau erfolgt mieterseitig in Abstimmung mit dem Eigentümer – dadurch ist die Mietpreisgestaltung abhängig vom gewünschten Ausbaustandard und erfolgt auf Anfrage. Die Fläche eignet sich ideal für vielfältige Nutzungskonzepte – von modernen Büros über Praxisräume bis hin zu Showroomlösungen.
Ab dem 1. Juli 2026 wird zusätzlich eine weitere Büroeinheit mit ca. 304 m² im 5. Obergeschoss verfügbar. Diese Fläche besticht durch ihre Helligkeit, einen attraktiven Ausblick und eine effiziente Raumaufteilung.
Die Büroflächen sind mit hochwertigen technischen Standards ausgestattet: Fensterbankkabelkanäle ermöglichen eine strukturierte Strom-, IT- und Kommunikationsverkabelung, wobei die IT-Verkabelung des Vormieters übernommen werden kann. Für ein angenehmes Raumklima und blendfreies Arbeiten sorgen ein außenliegender Sonnenschutz sowie ein zusätzlicher innenliegender Blend- und Sichtschutz. Die glatten Decken sind mit pendelnden Leuchten für Bildschirmarbeitsplätze versehen. Eine Teeküche sowie ein Personenaufzug runden den hohen Ausstattungsstandard ab. Stellplätze stehen in ausreichender Zahl im angrenzenden Parkhaus zur Anmietung bereit.