Victor-Gollancz-Straße 5, 76137 Karlsruhe

Das Neubauprojekt in der Victor-Gollancz-Straße 5 in Karlsruhe vereint moderne Architektur mit höchstem Anspruch an Funktionalität und Design. Die flexibel gestaltbaren Büroflächen bieten ideale Voraussetzungen für Einzel-, Großraum- sowie Kombibüros und schaffen Raum für effizientes und individuelles Arbeiten.

Neben den Büroflächen umfasst das Objekt auch hochwertige Konferenzbereiche, die moderne Meeting- und Kommunikationsmöglichkeiten gewährleisten. Ergänzt wird das Nutzungskonzept durch attraktive Hotel- und Retailflächen, die eine perfekte Work-Life-Balance im Objekt ermöglichen und den Standort zusätzlich aufwerten.

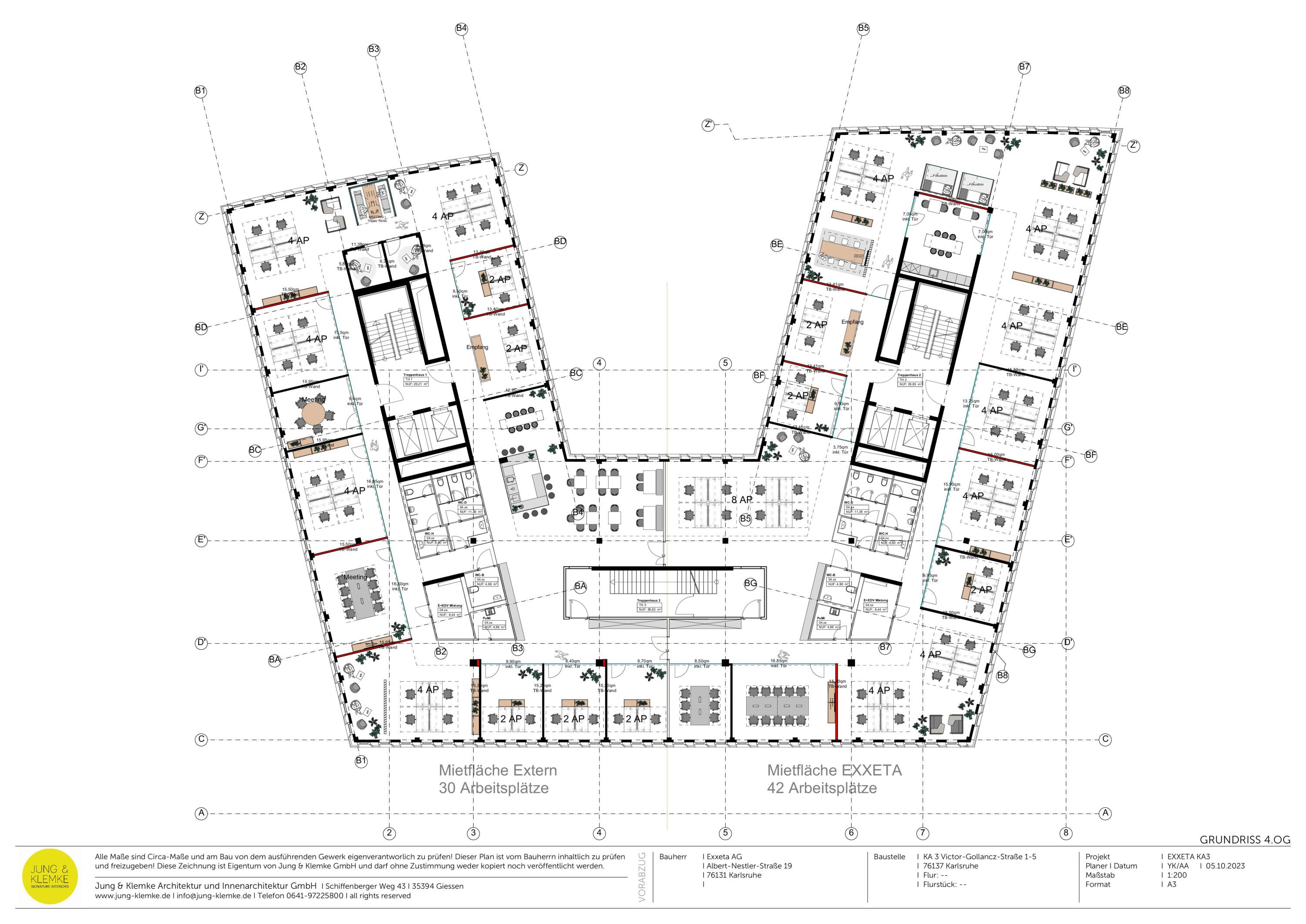
Aktuell steht im 4. Obergeschoss des Hauses I eine freie Fläche von ca. 757 qm zur Untervermietung zur Verfügung – ideal für Unternehmen, die eine repräsentative und moderne Arbeitsumgebung in Karlsruhe suchen.

Ihr persönlicher Kontakt

Beate Dammaschk

Business Development

Hauptstandort

Glücksteinallee 69

68163, Mannheim

Profilbild von Beate Dammaschk

Merkmale des Objekts

Mobilität

83 km zum Flughafen

4 min zum Hauptbahnhof

E-Ladestation

Fahrradstellplätze

ÖPNV direkt vor der Tür

Ökologie

Begrünte Dachfläche

Grüner Innenhof

Soziales, Service & Sicherheit

BMA-Zentrale

Orte für sozialen Austausch

PERFEKT ANGEBUNDEN

Victor-Gollancz-Straße 5

76137 Karlsruhe

Karlsruhe ist nach Stuttgart und Mannheim die drittgrößte Stadt in Baden-Württemberg und gilt als eine der bedeutendsten Technologieregionen Deutschlands. Die Stadt zählt zu den Top 10 der innovativsten Regionen Europas und bietet ein ideales Umfeld für technologieorientierte Unternehmen und Dienstleister. 

Das Neubauprojekt entsteht im dynamischen und stark frequentierten Quartier Ka³, das zu den zentralsten und attraktivsten Arealen Karlsruhes zählt. In unmittelbarer Nähe befindet sich der Karlsruher Hauptbahnhof, welcher das Quartier zu einem verkehrstechnischen Knotenpunkt macht und eine hervorragende Anbindung an regionale, nationale und internationale Verbindungen gewährleistet.

Die verkehrliche Infrastruktur ist ausgezeichnet: Karlsruhe liegt direkt an den Autobahnen A8 und A5 sowie an den Bundesstraßen B3, B10 und B36, wodurch eine schnelle Erreichbarkeit zahlreicher Ziele gewährleistet ist. Der Flughafen Karlsruhe/Baden-Baden ist in rund 50 Minuten mit dem PKW erreichbar, die französische Grenze sogar in nur 30 Minuten.

Darüber hinaus verfügt Karlsruhe über einen sehr gut ausgebauten öffentlichen Nahverkehr mit mehreren Straßenbahnlinien sowie ICE- und TGV-Verbindungen, die nationale und internationale Reiseziele verbinden. Zahlreiche Dienstleister des täglichen Bedarfs sind fußläufig erreichbar und sichern die Lebensqualität rund um den Standort.

Hauptgebäude

Victor-Gollancz-Straße 5, 76137 Karlsruhe

2023
Baujahr
7
Etagen

Eigenschaften

Individuell ausbaubar

Barrierefrei

Dachterrasse

Variable Raumaufteilung

Elektrischer Sonnenschutz

Klimatisierung

Personenaufzüge

Mietflächen

757,0 m²

Bürofläche

Büro

Ab 19,90 € pro m²
Mietzins
Ab 0,00 € pro m²
Nebenkosten
Ab sofort
Verfügbar
757,0 m²
Büro

Kontaktanfrage

Kontaktieren Sie uns jetzt unverbindlich und unkompliziert.

Profilbild von Beate Dammaschk

Beate Dammaschk

Business Development

Weitere Objekte

SCHOLL Real Estate Solutions GmbH

Die SCHOLL Real Estate Solutions bietet maßgeschneiderte Dienstleistungen für die Vermietung & den Verkauf von Gewerbeimmobilien. Vertrauen auch Sie auf jahrzehntelange Erfahrung aus der Region!