DAS WESTINGHOUSE

Das „Westinghouse“ präsentiert sich als architektonisches Highlight auf der begehrten Büromeile der Dudenstraße. Mit seiner modernen, hochwertigen Fassadengestaltung und einer eindrucksvollen Präsenz setzt das Gebäude Maßstäbe und hinterlässt sowohl bei Kunden als auch bei Geschäftspartnern einen bleibenden Eindruck. Der repräsentative Charakter wird durch höchste Sicherheitsstandards ergänzt und schafft eine Arbeitsumgebung, die Professionalität und Wohlbefinden perfekt miteinander verbindet.

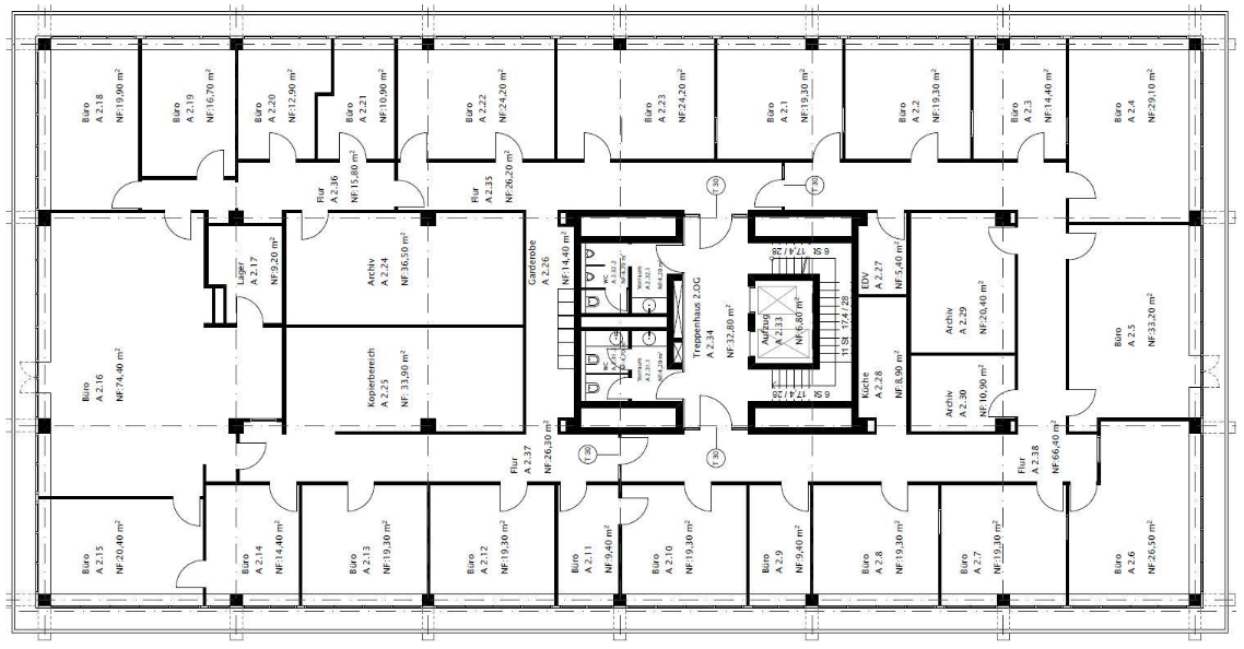
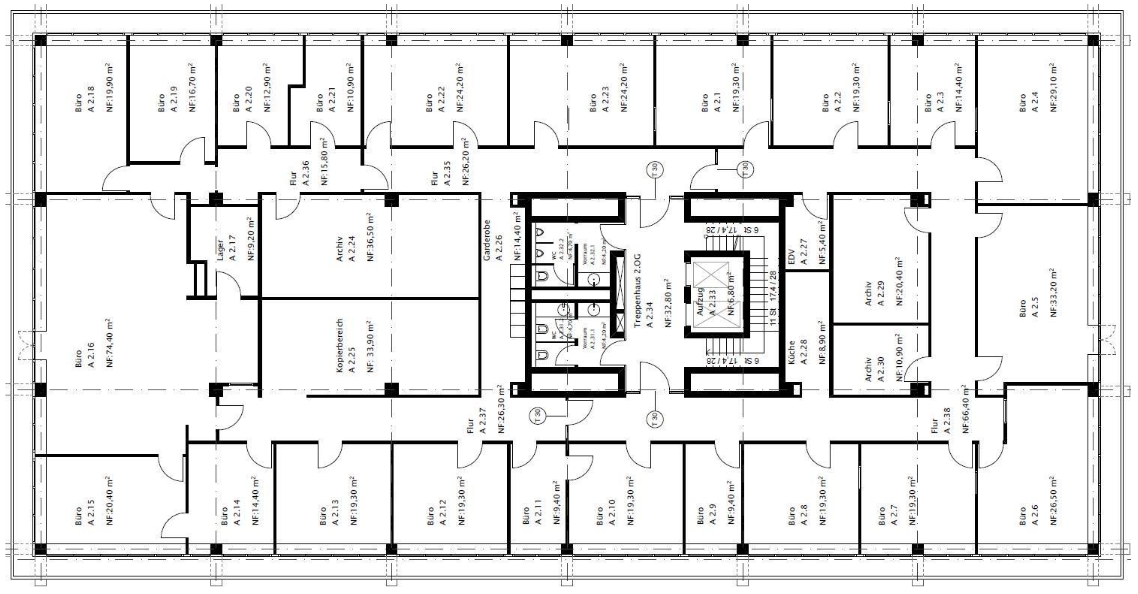
Die Büroflächen des „Westinghouse“ sind flexibel teilbar und stehen ab einer Größe von etwa 400 m² zur Verfügung. Die Flächen im zweiten, dritten und vierten Obergeschoss bieten ideale Voraussetzungen für individuelle Raumkonzepte und effiziente Arbeitsprozesse. Dank mehrerer Personenaufzüge sind alle Etagen komfortabel erreichbar, während eine Vielzahl an Außenstellplätzen ausreichend Parkmöglichkeiten für Mitarbeiter und Besucher sicherstellt. Ein besetzter Empfangsbereich sorgt für eine professionelle Begrüßung und Betreuung Ihrer Gäste.

Im Inneren überzeugen die Büros durch eine moderne Ausstattung: Strapazierfähiger Nadelfilzboden, innen- und außenliegender Sonnenschutz sowie integrierte Teeküchen gewährleisten ein angenehmes Arbeitsklima. Die technische Infrastruktur entspricht höchsten Anforderungen – mit einer leistungsstarken CAT 6- und CAT 7-Verkabelung sowie Glasfaseranschluss sind die Flächen bestens für die Zukunft gerüstet. Für ein stets angenehmes Raumklima sorgt eine energieeffiziente Bauteiltemperierung, während die Besprechungsräume zusätzlich klimatisiert werden. Die Beheizung erfolgt über umweltfreundliche Fernwärme.

Ein besonderes Highlight des Gebäudes ist der begrünte Innenhof mit exklusivem Freizeit- und Grillbereich, der eine willkommene Auszeit im Arbeitsalltag ermöglicht und die Mitarbeiterzufriedenheit nachhaltig steigert. Das „Westinghouse“ verbindet damit höchste Funktionalität mit einem modernen Lebensgefühl – ein Standort, der Unternehmen und Teams begeistert.

Ihr persönlicher Kontakt

Beate Dammaschk

Business Development

Hauptstandort

Glücksteinallee 69

68163, Mannheim

Profilbild von Beate Dammaschk

Aljoscha Scholl

Managing Director

Hauptstandort

Glücksteinallee 69

68163, Mannheim

Profilbild von Aljoscha Scholl

Bilder

Merkmale des Objekts

Mobilität

67.5 km zum Flughafen

3.6 km zum Hauptbahnhof

Fahrradstellplätze

ÖPNV direkt vor der Tür

Soziales, Service & Sicherheit

BMA-Zentrale

Orte für sozialen Austausch

Ökologie

Grüner Innenhof

Energieeffizienz

Fernwärme

PERFEKT ANGEBUNDEN

Dudenstraße 6

68167 Mannheim

Mannheim, die „Stadt im Quadrat“, liegt am Zusammenfluss von Rhein und Neckar und hat sich dank ihrer strategisch günstigen Lage zu einer der bedeutendsten Wirtschafts- und Verkehrsmetropolen in Südwestdeutschland entwickelt. Als zweitgrößte Stadt Baden-Württembergs bildet Mannheim das wirtschaftliche und kulturelle Zentrum der Metropolregion Rhein-Neckar – dem siebtgrößten Ballungsraum Deutschlands mit rund 2,4 Millionen Einwohnern.

Das „Westinghouse“ befindet sich im etablierten Gewerbegebiet des Stadtteils Mannheim-Wohlgelegen, einem dynamischen Unternehmensstandort mit gewachsenem Umfeld. Über die Bundesstraßen B38 und B38a sind die wichtigsten Autobahnen – A5, A6, A656 und A659 – in wenigen Fahrminuten erreichbar, was eine hervorragende Anbindung an das regionale und überregionale Verkehrsnetz garantiert. Auch die Mannheimer Innenstadt sowie der Hauptbahnhof sind sowohl mit dem Auto als auch über den öffentlichen Nahverkehr schnell erreichbar, sodass eine optimale Erreichbarkeit für Mitarbeiter, Kunden und Geschäftspartner sichergestellt ist.

Die Umgebung ist geprägt von einer Mischung aus modernen Büro- und Laborgebäuden sowie gewerblichen Nutzungen und bietet ein vielfältiges Angebot an Versorgungs- und Dienstleistungseinrichtungen in unmittelbarer Nähe. Das „Westinghouse“ profitiert damit von einer hervorragenden Infrastruktur und einem attraktiven Unternehmensumfeld.

Hauptgebäude

Dudenstraße 6, 68167 Mannheim

5
Etagen
2.400,0 m²
Gesamtmietfläche

Eigenschaften

Barrierefrei

Besetzter Empfang

Variable Raumaufteilung

CAT7-Verkabelung

Elektrischer Sonnenschutz

Klimatisierung

Personenaufzüge

Mietflächen

800,0 m²

Bürofläche (teilbar ab 400qm)

Büro

Ab 10,00 € pro m²
Mietzins
Ab 2,50 € pro m²
Nebenkosten
Ab sofort
Verfügbar
800,0 m²
Büro

800,0 m²

Bürofläche (teilbar ab 400qm)

Büro

Ab 10,00 € pro m²
Mietzins
Ab 2,50 € pro m²
Nebenkosten
Ab sofort
Verfügbar
800,0 m²
Büro

800,0 m²

Bürofläche (teilbar ab 400qm)

Büro

Ab 10,00 € pro m²
Mietzins
Ab 2,50 € pro m²
Nebenkosten
Ab sofort
Verfügbar
800,0 m²
Büro

Kontaktanfrage

Kontaktieren Sie uns jetzt unverbindlich und unkompliziert.

Profilbild von Beate Dammaschk

Beate Dammaschk

Business Development

Profilbild von Aljoscha Scholl

Aljoscha Scholl

Managing Director

Weitere Objekte

SCHOLL Real Estate Solutions GmbH

Die SCHOLL Real Estate Solutions bietet maßgeschneiderte Dienstleistungen für die Vermietung & den Verkauf von Gewerbeimmobilien. Vertrauen auch Sie auf jahrzehntelange Erfahrung aus der Region!