Warendorfer Straße 4, 17192 Waren

Moderne Büroflächen im Herzen von Waren (Müritz) mit 190 PKW-Stellplätzen verfügbar

Einzigartiges Gewerbeobjekt in Waren (Müritz)

Willkommen an der Warendorfer Straße 4 in 17192 Waren (Müritz) – einer herausragenden Geschäftsadresse in einer der malerischsten Regionen Deutschlands. Dieses ansprechende Gewerbeobjekt besticht durch seine Kombination aus moderner Ausstattung und strategischer Lage. Das Hauptgebäude erstreckt sich über drei Etagen und wurde zuletzt im Jahr 2020 modernisiert, was einen hohen Standard der Ausstattung garantiert.

Mit seiner eindrucksvollen Gesamtfläche von 956,0 m² und der komfortablen Erreichbarkeit wird es zu einem bevorzugten Standort für visionäre Unternehmer. Für Komfort sorgen Personenaufzüge, die einen reibungslosen Zugang zu den verschiedenen Ebenen bieten. Baujahr 1994, verspricht das Bauwerk eine ausgewogene Mischung aus klassischer Bauweise und zeitgemäßen Elementen.

Für die Anreise mit dem Auto stehen großzügige 190 PKW-Stellplätze zur Verfügung. Gelegen in der charmanten Stadt Waren (Müritz) bietet dieses Objekt nicht nur hervorragende unternehmerische Möglichkeiten, sondern auch eine erstklassige Lebensqualität in der Umgebung. Ein ideales Umfeld für Geschäftstätigkeiten aller Art erwartet Sie hier.

Ihr persönlicher Kontakt

Beate Dammaschk

Business Development

Hauptstandort

Glücksteinallee 69

68163, Mannheim

Profilbild von Beate Dammaschk

PERFEKT ANGEBUNDEN

Warendorfer Straße 4

17192 Waren (Müritz)

Die Gewerbeimmobilie in der Warendorfer Straße 4 zeichnet sich durch ihre optimale Lage im pulsierenden Herzen von Waren (Müritz) aus - einer dynamischen Stadt, die mit ihrer Lebendigkeit und Vielfalt überrascht. Bequem im Herzen der Stadt gelegen, vermittelt die Immobilie eine Atmosphäre von Urbanität und Exklusivität. Darüber hinaus sorgt die großzügige Anzahl von 190 PKW-Stellplätzen für eine stressfreie Anfahrt und Parkmöglichkeiten, was sowohl für Mitarbeiter als auch für Kunden von großer Bedeutung ist. Hier verbindet sich funktionale Infrastruktur mit der Eleganz städtischen Lebens. Nutzen Sie den Standortvorteil dieser Immobilie und positionieren Sie Ihr Unternehmen strategisch und vorteilhaft im dynamischen Umfeld dieser Stadt.

Hauptgebäude

Warendorfer Straße 4, 17192 Waren (Müritz)

1994
Baujahr

Eigenschaften

Personenaufzüge

Modernisierung 2020

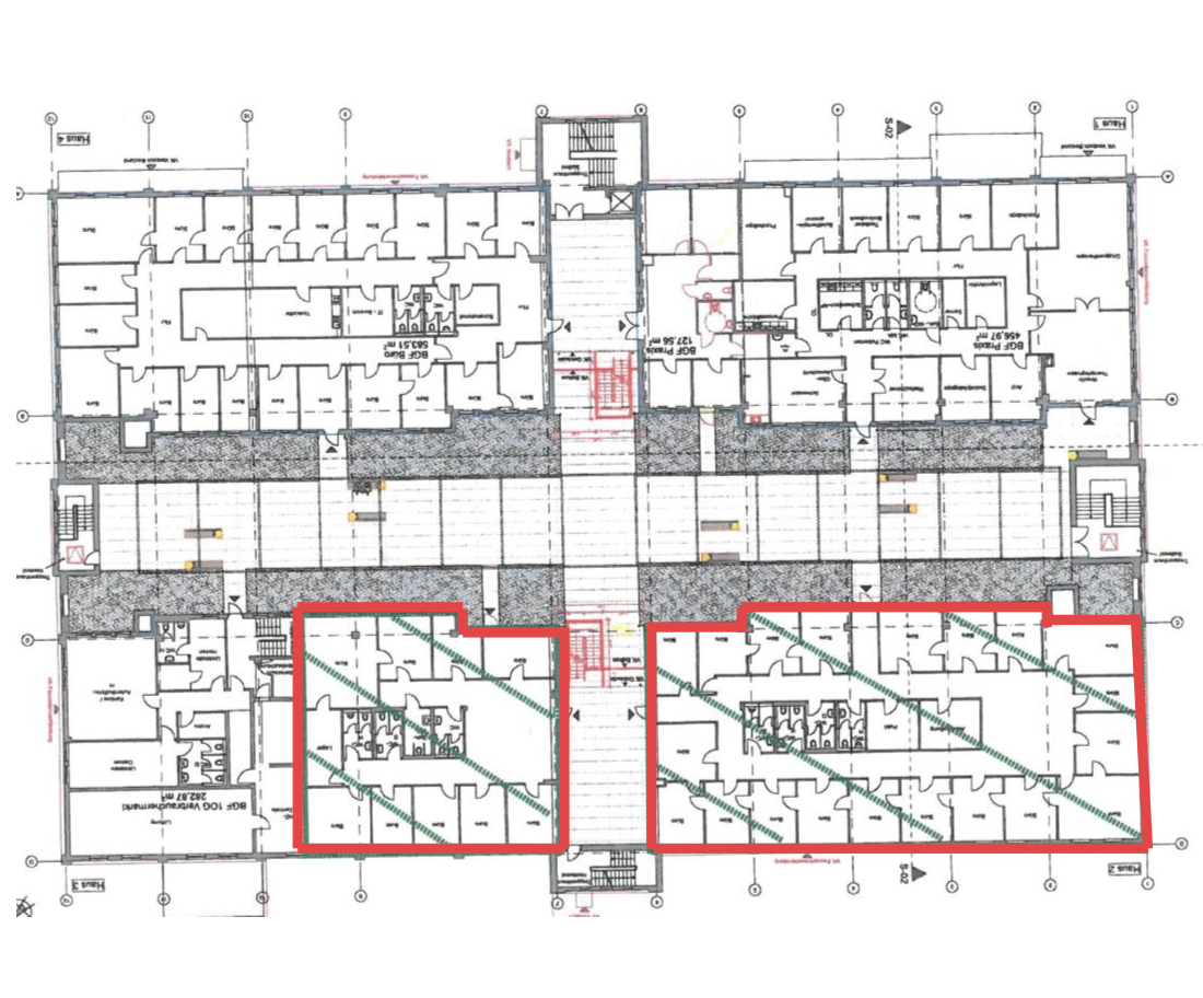
Mietflächen

770,0 m²

Neues Inserat

Büro

Ab 6,00 € pro m²
Mietzins
Ab 3,60 € pro m²
Nebenkosten
Ab 30.06.2026
Verfügbar
770,0 m²
Büro

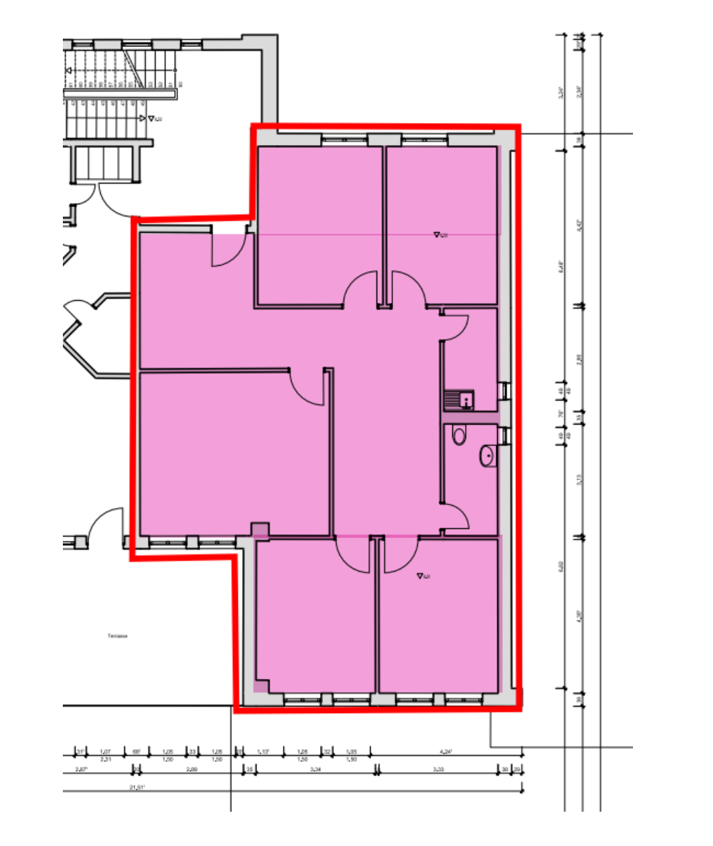
131,0 m²

Neues Inserat 1

Büro

Ab 6,00 € pro m²
Mietzins
Ab 3,60 € pro m²
Nebenkosten
Ab sofort
Verfügbar
131,0 m²
Büro

55,0 m²

Neues Inserat 2

Büro

Ab 6,00 € pro m²
Mietzins
Ab 3,60 € pro m²
Nebenkosten
Ab sofort
Verfügbar
55,0 m²
Büro
SCHOLL Real Estate Solutions GmbH

Die SCHOLL Real Estate Solutions bietet maßgeschneiderte Dienstleistungen für die Vermietung & den Verkauf von Gewerbeimmobilien. Vertrauen auch Sie auf jahrzehntelange Erfahrung aus der Region!

Kontaktanfrage

Kontaktieren Sie uns jetzt unverbindlich und unkompliziert.

Profilbild von Beate Dammaschk

Beate Dammaschk

Business Development