Untere Königsstraße 95

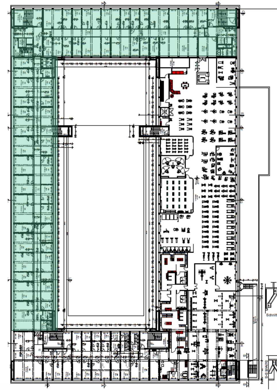
Das 6-geschossige Büro- und Geschäftshaus hat im vorderen Teil des EG/Hofgeschoss Ladenflächen im hinteren Teil Gewerbehallen mit Rolltoren, die direkt befahrbar sind.
 Die Grundrisse und die Ausstattung der Büroflächen in den oberen Geschossen lassen sich individuell und nach Mieterwünschen maßgeschneidert gestalten.
 Derzeitige Mieter sind Deutsche Post, McFit, Element Boulders und das Amt für Straßen- und Verkehrswesen. 

Ihr persönlicher Kontakt

Beate Dammaschk

Business Development

Hauptstandort

Glücksteinallee 69

68163, Mannheim

Profilbild von Beate Dammaschk

Bilder

Merkmale des Objekts

Mobilität

Fahrradstellplätze

ÖPNV direkt vor der Tür

Soziales, Service & Sicherheit

BMA-Zentrale

Orte für sozialen Austausch

PERFEKT ANGEBUNDEN

Untere Königsstraße 95

34117 Kassel

Das Büro- und Geschäftshaus befindet sich in zentraler City-Lage am Holländischen Platz. Die Untere Königsstraße ist die Verlängerung der Fußgängerzone. Innenstadt und Haupteinkaufsstraße sind somit fußläufig zu erreichen. Direkt gegenüber liegt die Universität Kassel mit großem Campus. In unmittelbarer Nähe befindet sich der Hauptbahnhof Kassel. 

Eine sehr gute Anbindung an den ÖPNV, mit der Straßenbahnhaltestelle „Holländischer Platz/Universität“, direkt vor dem Haus ist gewährleistet. Das Objekt ist mit dem Auto über die Bundesstraßen B7/B38 und B251 ideal erreichbar. 

Hauptgebäude

Untere Königsstraße 95, 34117 Kassel

1978
Baujahr
6
Etagen
22.050,0 m²
Gesamtmietfläche

Eigenschaften

Individuell ausbaubar

Barrierefrei

Variable Raumaufteilung

Lastenaufzüge

Personenaufzüge

Sonnenschutz

Mietflächen

341,0 m²

Kellergeschoss

Büro

Ab 10,00 € pro m²
Mietzins
Ab 0,00 € pro m²
Nebenkosten
Ab sofort
Verfügbar
341,0 m²
Büro

783,0 m²

Ebene -1

Büro

Ab 10,00 € pro m²
Mietzins
Ab 0,00 € pro m²
Nebenkosten
Ab sofort
Verfügbar
783,0 m²
Büro

1.575,0 m²

Bürofläche

Büro

Ab 10,00 € pro m²
Mietzins
Ab 0,00 € pro m²
Nebenkosten
Ab sofort
Verfügbar
1.575,0 m²
Büro

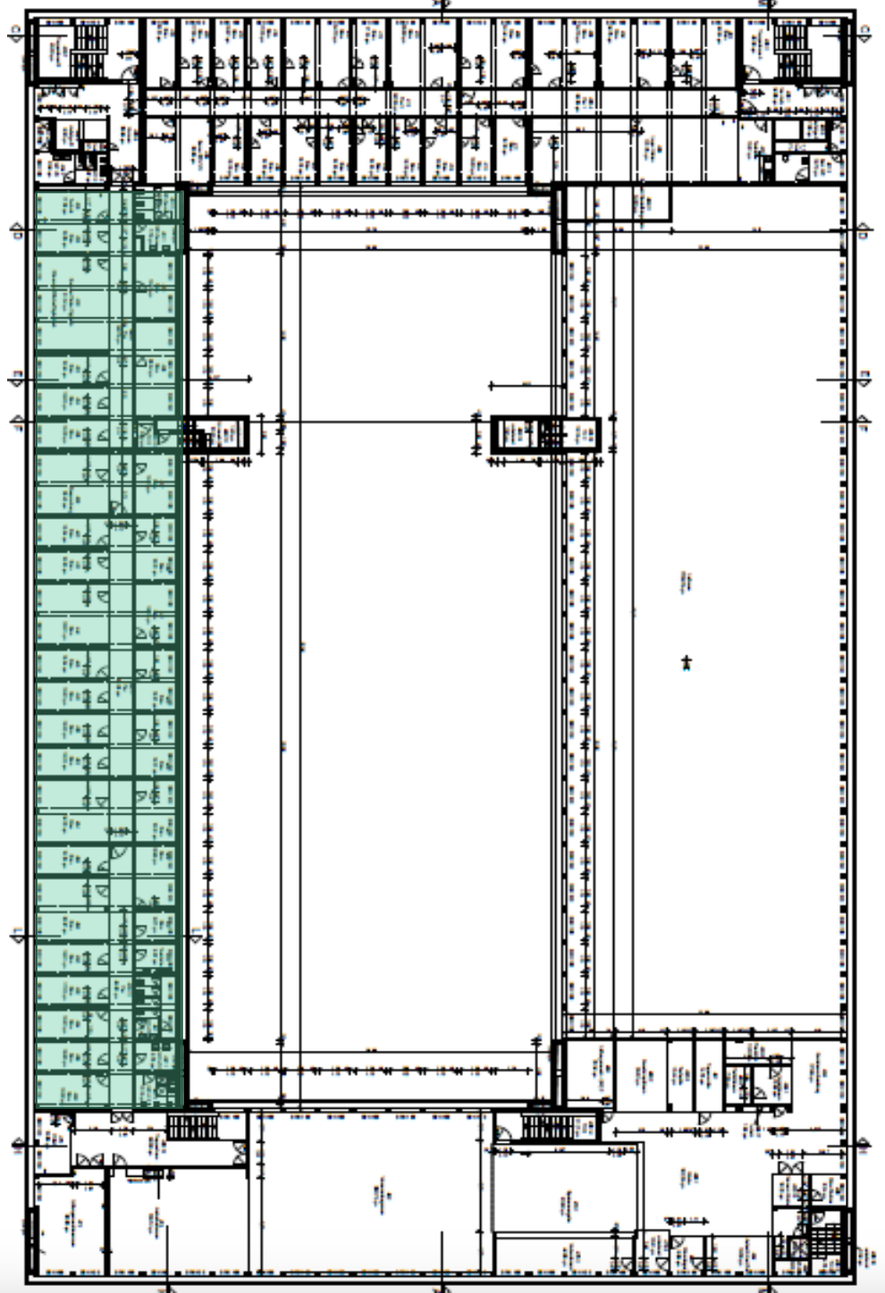
340,0 m²

Bürofläche Zwischengeschoss

Büro

Ab 10,00 € pro m²
Mietzins
Ab 0,00 € pro m²
Nebenkosten
Ab sofort
Verfügbar
340,0 m²
Büro

1.142,0 m²

Bürofläche Zwischengeschoss

Büro

Ab 10,00 € pro m²
Mietzins
Ab 0,00 € pro m²
Nebenkosten
Ab sofort
Verfügbar
1.142,0 m²
Büro

870,0 m²

Bürofläche

Büro

Ab 10,00 € pro m²
Mietzins
Ab 0,00 € pro m²
Nebenkosten
Ab sofort
Verfügbar
870,0 m²
Büro

Kontaktanfrage

Kontaktieren Sie uns jetzt unverbindlich und unkompliziert.

Profilbild von Beate Dammaschk

Beate Dammaschk

Business Development

SCHOLL Real Estate Solutions GmbH

Die SCHOLL Real Estate Solutions bietet maßgeschneiderte Dienstleistungen für die Vermietung & den Verkauf von Gewerbeimmobilien. Vertrauen auch Sie auf jahrzehntelange Erfahrung aus der Region!

Weitere Objekte