Günther-Wagner-Allee 13-17, 30177 Hannover-List

Modernes Bürogebäude mit exzellenter Anbindung und 9 Parkplätzen in Hannover-List

Das siebengeschossige Büro- und Geschäftshaus in der Günter-Wagner-Allee 13–17 in Hannover bietet eine attraktive Kombination aus zentrumsnaher Lage und moderner Ausstattung. Mit insgesamt rund 8.200 m² Bürofläche sowie ca. 1.314 m² Ladenfläche befindet sich das Objekt im beliebten Pelikanviertel, das nach dem traditionsreichen Hauptsitz der Firma Pelikan benannt ist.

Die Übergabe der Flächen erfolgt im renovierten Zustand. Zur hochwertigen Ausstattung zählen eine Einbauküche, Teppichboden in den Bürobereichen sowie Kunststoffbelag in den Küchenbereichen. Glasmodulsystemwändeermöglichen flexible Raumaufteilungen und schaffen helle Arbeitsbereiche. Für eine zeitgemäße technische Infrastruktur sorgt ein LWL-Kabelanschluss der Firma Colt. Moderne Pendelleuchten gewährleisten eine angenehme Beleuchtung.

Das Gebäude ist mit Personenaufzügen ausgestattet und verfügt über eine Tiefgarage mit Stellplätzen (Nr. 8, 47–49, 62–65, insgesamt 9 Stück). Die Lage kombiniert eine repräsentative Adresse mit einer hervorragenden Erreichbarkeit und der attraktiven Atmosphäre des Pelikanviertels.

Ihr persönlicher Kontakt

Beate Dammaschk

Business Development

Hauptstandort

Glücksteinallee 69

68163, Mannheim

Profilbild von Beate Dammaschk

Aljoscha Scholl

Managing Director

Hauptstandort

Glücksteinallee 69

68163, Mannheim

Profilbild von Aljoscha Scholl

Bildergalerie

PERFEKT ANGEBUNDEN

Günther-Wagner-Allee 13-17

30177 Hannover

Diese geschäftige Lage in der Günther-Wagner-Allee, im pulsierenden Stadtteil Hannover-List, bietet eine unwiderstehliche Mischung aus kommerzieller Vitalität und erstklassiger Anbindung. Umgeben von zahlreichen Bushaltestellen ist es eine leichte Aufgabe, das Innere von Hannover zu erreichen. Die nächstgelegenen Bushaltestellen sind die Brüder-Grimm-Schule und der Gertrud-Greising-Weg, die Sie in jeweils etwa vier Gehminuten erreichen.

Die Strassenbahnstationen Pelikanstraße und Spannhagengarten sind in nur sieben und zwölf Gehminuten erreichbar und bieten noch mehr Mobilitätsmöglichkeiten. Für Autofahrer stehen ebenfalls zahlreiche Parkmöglichkeiten zur Verfügung, einschließlich eines Parkhauses mit neun Parkplätzen in unmittelbarer Nähe des Gebäudes.

Nicht zu vergessen ist die beeindruckende Vielfalt an gastronomischen Optionen in Gehweite. Egal, ob Sie Lust auf Sushi im Sushi Kaiser haben oder traditionelle italienische Küche im Ristorantino Stromboli oder Da Gennaro Trattoria bevorzugen - alle diese Orte sind in weniger als vier Gehminuten erreichbar. Cafés wie Balkenholl und Buck's Backparadies laden Sie zu einer Kaffeepause ein - beide sind in weniger als sechs Minuten zu Fuß erreichbar.

Für den täglichen Einkauf liegt der Supermarkt Netto City nur sechs Gehminuten entfernt, während Fitnessbegeisterte das nahegelegene Fitnessstudio EASYFitness in nicht einmal fünf Gehminuten erreichen können.

Zusammenfassend bietet diese exzellent gelegene Gewerbeimmobilie in der Günther-Wagner-Allee in Hannover-List eine unvergleichliche Kombination aus Verkehrsanbindung, umgebenden Dienstleistungen und gastronomischen Optionen, die eine angenehme Arbeitsumgebung fördern.

Hauptgebäude

Günther-Wagner-Allee 13-17, 30177 Hannover

Renoviert

Eigenschaften

Personenaufzüge

Mietflächen

25,0 m²

Bürofläche

Büro

Ab 6,00 € pro m²
Mietzins
Ab 4,50 € pro m²
Nebenkosten
Ab sofort
Verfügbar
25,0 m²
Büro

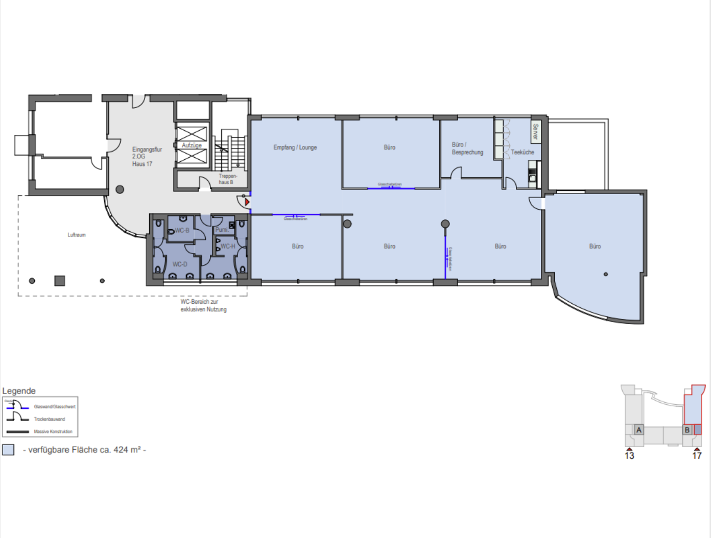
424,0 m²

Neues Inserat

Büro

Ab 12,50 € pro m²
Mietzins
Ab 4,50 € pro m²
Nebenkosten
Ab sofort
Verfügbar
424,0 m²
Büro
SCHOLL Real Estate Solutions GmbH

Die SCHOLL Real Estate Solutions bietet maßgeschneiderte Dienstleistungen für die Vermietung & den Verkauf von Gewerbeimmobilien. Vertrauen auch Sie auf jahrzehntelange Erfahrung aus der Region!

Kontaktanfrage

Kontaktieren Sie uns jetzt unverbindlich und unkompliziert.

Profilbild von Beate Dammaschk

Beate Dammaschk

Business Development

Profilbild von Aljoscha Scholl

Aljoscha Scholl

Managing Director