Rollnerstraße 111, 90408 Nürnberg

Moderne Büros in zentraler Lage von Nürnberg - ideal für Ihr Unternehmen!

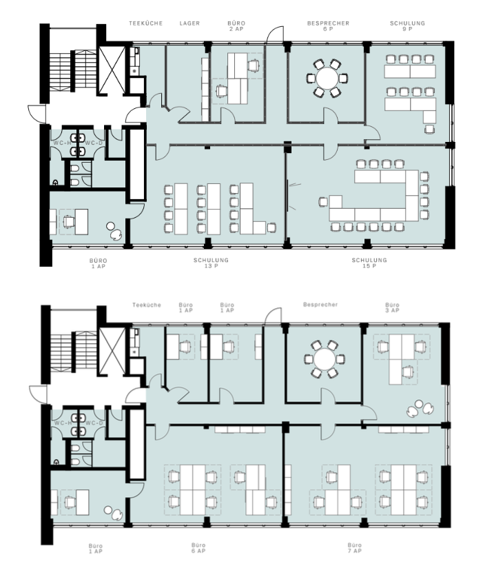
Die angebotene Bürofläche in der Rollnerstraße 111 in Nürnberg überzeugt durch ihre moderne Ausstattung und flexible Nutzungsmöglichkeiten. Die Räume können nach den individuellen Bedürfnissen des Mieters angepasst werden, wodurch sich eine flexible Raumaufteilung realisieren lässt.

Die Einheit verfügt über sanierte WC-Kerne, eine Teeküche sowie einen Personenaufzug, der einen barrierefreien Zugang gewährleistet. Großzügige Fensterfronten sorgen für helle Arbeitsbereiche und eine freundliche Atmosphäre. Ein außenliegender Sonnenschutz trägt zusätzlich zu einem angenehmen Raumklima bei.

Für Mitarbeiter und Besucher stehen Parkplätze zur Verfügung, die eine komfortable Anreise ermöglichen. Die Kombination aus moderner Ausstattung, zentraler Lage und flexibler Nutzung macht diese Bürofläche ideal für Unternehmen, die eine attraktive und repräsentative Adresse in Nürnberg suchen.

Ihr persönlicher Kontakt

Beate Dammaschk

Business Development

Hauptstandort

Glücksteinallee 69

68163, Mannheim

Profilbild von Beate Dammaschk

Aljoscha Scholl

Managing Director

Hauptstandort

Glücksteinallee 69

68163, Mannheim

Profilbild von Aljoscha Scholl

Bildergalerie

Merkmale des Objekts

Mobilität

3 km zum Hauptbahnhof

PERFEKT ANGEBUNDEN

Rollnerstraße 111

90408 Nürnberg

Unsere Immobilie in der Rollnerstraße 111 in Nürnberg erfreut sich einer hervorragenden Lage. Mit einer nur einminütigen Gehzeit befindet sich die nächste Bushaltestelle "Rollnerstraße / Nordring" in unmittelbarer Nähe. In einem Radius von zehn Gehminuten finden Sie zahlreiche gastronomische Einrichtungen wie das Café "Der Beck", das "Gasthaus Max" und "Freddy Fresh".

Das Viertel bietet ebenso zahlreiche Möglichkeiten zur körperlichen Ertüchtigung. So sind das Fitnessstudio "FitX" und das Pilatesstudio "Pilates Allegro Nürnberg", allesamt in weniger als fünfzehn Gehminuten erreichbar.

Die wohnortnahe Versorgung ist durch den Supermarkt "NORMA" sowie weitere Einkaufsstätten wie "La Costache" und "Edeka" gewährleistet, welche innerhalb von fünfzehn Minuten zu Fuß zu erreichen sind. Der zentrale Hauptbahnhof Nürnbergs lässt sich bequem in 35 Gehminuten oder mit einer kurzen Busfahrt erreichen. Rundum eine exzellente Infrastruktur für Ihr Büro.

Hauptgebäude

Rollnerstraße 111, 90408 Nürnberg

Eigenschaften

Personenaufzüge

Variable Raumaufteilung

Sonnenschutz

Mietflächen

262,0 m²

Neues Inserat 4

Gemeinschaft

Ab 9,00 € pro m²
Mietzins
Ab 3,90 € pro m²
Nebenkosten
Ab sofort
Verfügbar
262,0 m²
Gemeinschaft

471,0 m²

Neues Inserat 3

Büro

Ab 9,00 € pro m²
Mietzins
Ab 3,90 € pro m²
Nebenkosten
Ab sofort
Verfügbar
471,0 m²
Büro

277,0 m²

Neues Inserat

Büro

Ab 9,00 € pro m²
Mietzins
Ab 3,90 € pro m²
Nebenkosten
Ab sofort
Verfügbar
277,0 m²
Büro

277,0 m²

Neues Inserat 1

Büro

Ab 9,00 € pro m²
Mietzins
Ab 3,90 € pro m²
Nebenkosten
Ab sofort
Verfügbar
277,0 m²
Büro

277,0 m²

Neues Inserat 2

Büro

Ab 9,00 € pro m²
Mietzins
Ab 3,90 € pro m²
Nebenkosten
Ab sofort
Verfügbar
277,0 m²
Büro

Kontaktanfrage

Kontaktieren Sie uns jetzt unverbindlich und unkompliziert.

Profilbild von Beate Dammaschk

Beate Dammaschk

Business Development

Profilbild von Aljoscha Scholl

Aljoscha Scholl

Managing Director

SCHOLL Real Estate Solutions GmbH

Die SCHOLL Real Estate Solutions bietet maßgeschneiderte Dienstleistungen für die Vermietung & den Verkauf von Gewerbeimmobilien. Vertrauen auch Sie auf jahrzehntelange Erfahrung aus der Region!