Office Port

Flexible Büroräume - verkehrsgünstig gelegen

Die hellen und modernen Büroflächen in dem markanten Bürogebäude Office Port I befinden sich im Gewerbegebiet Rohrbach-Süd.
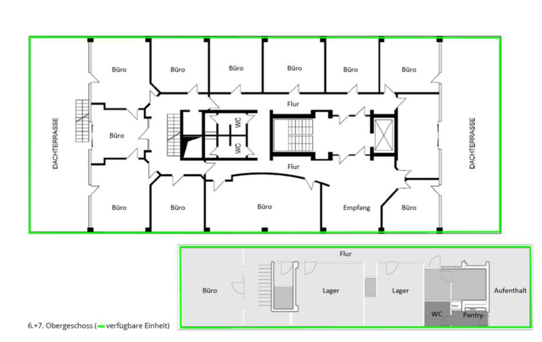
 Aktuell stehen zwei Büroeinheiten zur Anmietung bereit. Die eine befindet sich im Erdgeschoss und hat eine Größe von ca. 531 m2. Die andere Fläche befindet sich im 6. + 7. OG mit einer Größe von 585 m2. Die beiden Stockwerke sind mit einer Innenliegenden Treppe verbunden. 

Ihr persönlicher Kontakt

Beate Dammaschk

Business Development

Hauptstandort

Glücksteinallee 69

68163, Mannheim

Profilbild von Beate Dammaschk

Merkmale des Objekts

Soziales, Service & Sicherheit

BMA-Zentrale

Glasfaseranschluss

Orte für sozialen Austausch

Mobilität

Fahrradstellplätze

ÖPNV direkt vor der Tür

Energieeffizienz

Gasheizung

PERFEKT ANGEBUNDEN

Haberstraße 3

69126 Heidelberg

Rohrbach-Süd: Die Liegenschaft befindet sich im Heidelberger Stadtteil Rohrbach-Süd, der sich in den vergangenen Jahren zu einem attraktiven Büro- und Gewerbestandort entwickelt hat. Haltestellen des öffentlichen Nahverkehrs befinden sich in der näheren Umgebung und bieten eine sehr gute Anbindung an die Heidelberger Innenstadt sowie den Hauptbahnhof. Mit dem Auto erreicht man sowohl den Hauptbahnhof als auch die Zufahrt zur A 5 in nur wenigen Minuten. Zahlreiche Einkaufsmöglichkeiten und Restaurants sowie Cafés sind im nahegelegenen Einkaufscenter Rohrbach-Süd zu finden. 

Hauptgebäude

Haberstraße 3, 69126 Heidelberg

1974
Baujahr

Eigenschaften

Individuell ausbaubar

Modernisierung 2002

Barrierefrei

Variable Raumaufteilung

Elektrischer Sonnenschutz

Klimatisierung

Mietflächen

531,0 m²

Bürofläche

Büro

Ab 10,80 € pro m²
Mietzins
Ab 0,00 € pro m²
Nebenkosten
Ab sofort
Verfügbar
531,0 m²
Büro

585,0 m²

Bürofläche

Büro

Ab 10,80 € pro m²
Mietzins
Ab 0,00 € pro m²
Nebenkosten
Ab sofort
Verfügbar
585,0 m²
Büro

585,0 m²

Bürofläche

Büro

Ab 10,80 € pro m²
Mietzins
Ab 0,00 € pro m²
Nebenkosten
Ab sofort
Verfügbar
585,0 m²
Büro

Kontaktanfrage

Kontaktieren Sie uns jetzt unverbindlich und unkompliziert.

Profilbild von Beate Dammaschk

Beate Dammaschk

Business Development

Weitere Objekte

SCHOLL Real Estate Solutions GmbH

Die SCHOLL Real Estate Solutions bietet maßgeschneiderte Dienstleistungen für die Vermietung & den Verkauf von Gewerbeimmobilien. Vertrauen auch Sie auf jahrzehntelange Erfahrung aus der Region!