EASTSITE VI

Moderne und repräsentative Büroflächen in der EASTSITE

Im Büropark EASTSITE in Mannheim stehen moderne und flächenoptimierte Büroflächen zur Verfügung, die höchste Ansprüche an Effizienz und Komfort erfüllen. Die markante Architektur mit Fassaden aus Architekturbeton verleiht den Gebäuden einen einzigartigen Charakter und schafft ein repräsentatives Arbeitsumfeld.

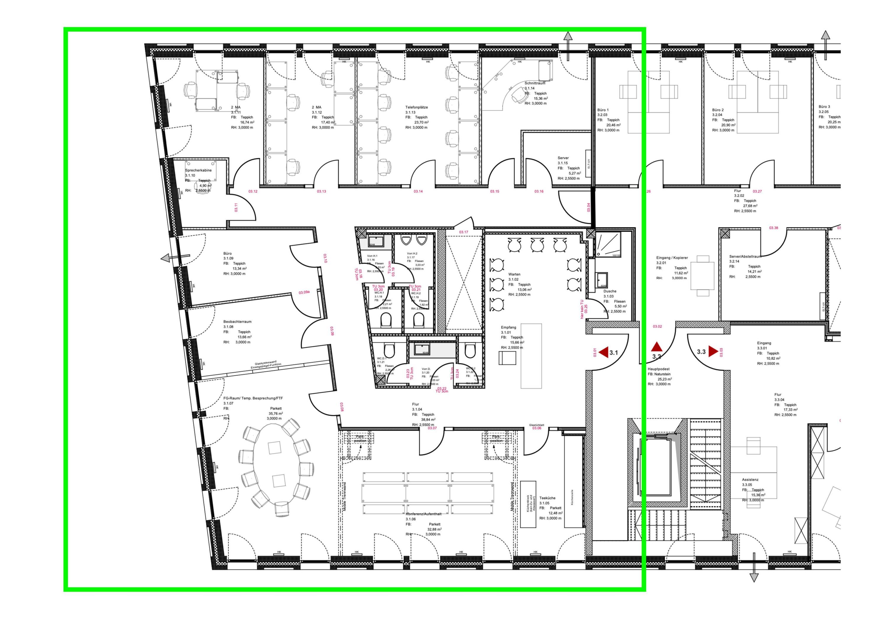
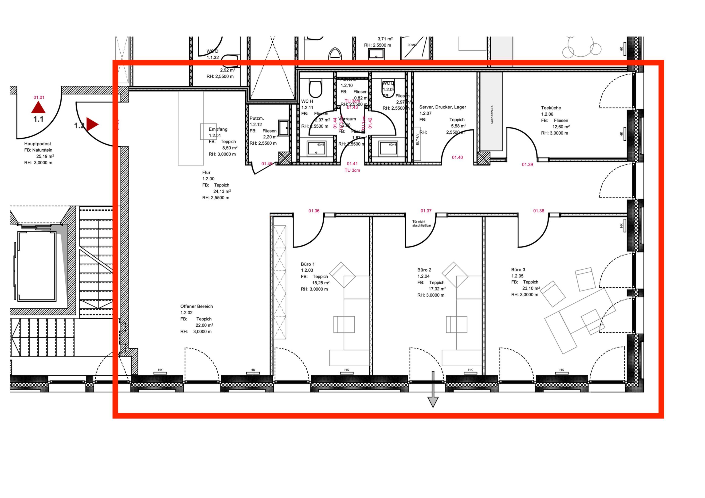
Die zur Verfügung stehenden Büroflächen befinden sich im 1. Obergeschoss mit ca. 157 m² sowie im 3. Obergeschoss mit ca. 318 m². Beide Einheiten sind flexibel gestaltbar und ermöglichen eine individuelle Raumaufteilung für unterschiedliche Nutzungskonzepte.

Das Gebäude verfügt über eine hochwertige technische Ausstattung mit Kühlung und Heizung über Bauteiltemperierung, Hohlraumboden mit Bodentanks für eine flexible Verkabelung, elektrisch steuerbaren Außenjalousien, CAT 7-Verkabelung, BAP-gerechter Beleuchtung sowie hochwertigen Sanitärbereichen und Teeküchenvorrichtungen. Eine kontrollierte Lüftung mit Wärme- und Feuchterückgewinnung sorgt für ein angenehmes Raumklima. Zudem erfüllt die integrierte Geothermieanlage hohe Standards in nachhaltiger und energieeffizienter Gebäudetechnik. Zusätzlich können Stellplätze im Außenbereich oder in der hauseigenen Tiefgarage angemietet werden.

Ihr persönlicher Kontakt

Aljoscha Scholl

Managing Director

Hauptstandort

Glücksteinallee 69

68163, Mannheim

Profilbild von Aljoscha Scholl

Bilder

Merkmale des Objekts

Energieeffizienz

Fernwärme

Geothermie

LED-Beleuchtung

Mobilität

72.3 km zum Flughafen

3.7 km zum Hauptbahnhof

Fahrradstellplätze

Soziales, Service & Sicherheit

BMA-Zentrale

Hausmeister

PERFEKT ANGEBUNDEN

Hermsheimer Straße

68163 Mannheim

Mannheim zählt zu den wichtigsten Wirtschaftsstandorten der Metropolregion Rhein-Neckar und bietet Unternehmen eine erstklassige Infrastruktur sowie hervorragende Standortvorteile. Die Stadt verfügt über eine optimale Verkehrsanbindung mit direktem Zugang zu den Autobahnen A5, A6 und A656, die eine schnelle Erreichbarkeit von Städten wie Frankfurt, Stuttgart und Karlsruhe ermöglichen. Der Mannheimer Hauptbahnhof als ICE-Knotenpunkt sowie die Nähe zum internationalen Flughafen Frankfurt sorgen für eine ausgezeichnete überregionale Anbindung.

Das Bürogebäude befindet sich in der Hermsheimer Straße 5 im Büropark EASTSITE, einem etablierten und modernen Gewerbegebiet im Süden Mannheims. Die Lage zeichnet sich durch eine hervorragende Erreichbarkeit sowohl mit dem Auto als auch mit öffentlichen Verkehrsmitteln aus. Die direkte Anbindung an die B36 sowie die kurzen Wege zur A656 und A6 ermöglichen schnelle Verbindungen in die gesamte Region. Die Umgebung ist geprägt von hochwertigen Bürogebäuden und innovativen Unternehmen, die den Standort zu einem attraktiven Arbeitsumfeld machen.

Hauptgebäude

Hermsheimer Straße , 68163 Mannheim

5
Etagen

Eigenschaften

Individuell ausbaubar

Barrierefrei

Variable Raumaufteilung

CAT7-Verkabelung

Elektrischer Sonnenschutz

Klimatisierung

Mietflächen

287,0 m²

Bürofläche 3.1

Büro

Ab 16,35 € pro m²
Mietzins
Ab 3,83 € pro m²
Nebenkosten
Ab sofort
Verfügbar
287,0 m²
Büro

157,0 m²

Bürofläche ME 1.2

Büro

Ab 16,30 € pro m²
Mietzins
Ab 3,50 € pro m²
Nebenkosten
Ab sofort
Verfügbar
157,0 m²
Büro

318,0 m²

Bürofläche

Büro

Ab 16,30 € pro m²
Mietzins
Ab 3,50 € pro m²
Nebenkosten
Ab sofort
Verfügbar
318,0 m²
Büro

Kontaktanfrage

Kontaktieren Sie uns jetzt unverbindlich und unkompliziert.

Profilbild von Aljoscha Scholl

Aljoscha Scholl

Managing Director

Weitere Objekte

SCHOLL Real Estate Solutions GmbH

Die SCHOLL Real Estate Solutions bietet maßgeschneiderte Dienstleistungen für die Vermietung & den Verkauf von Gewerbeimmobilien. Vertrauen auch Sie auf jahrzehntelange Erfahrung aus der Region!