Casterfeld-Center

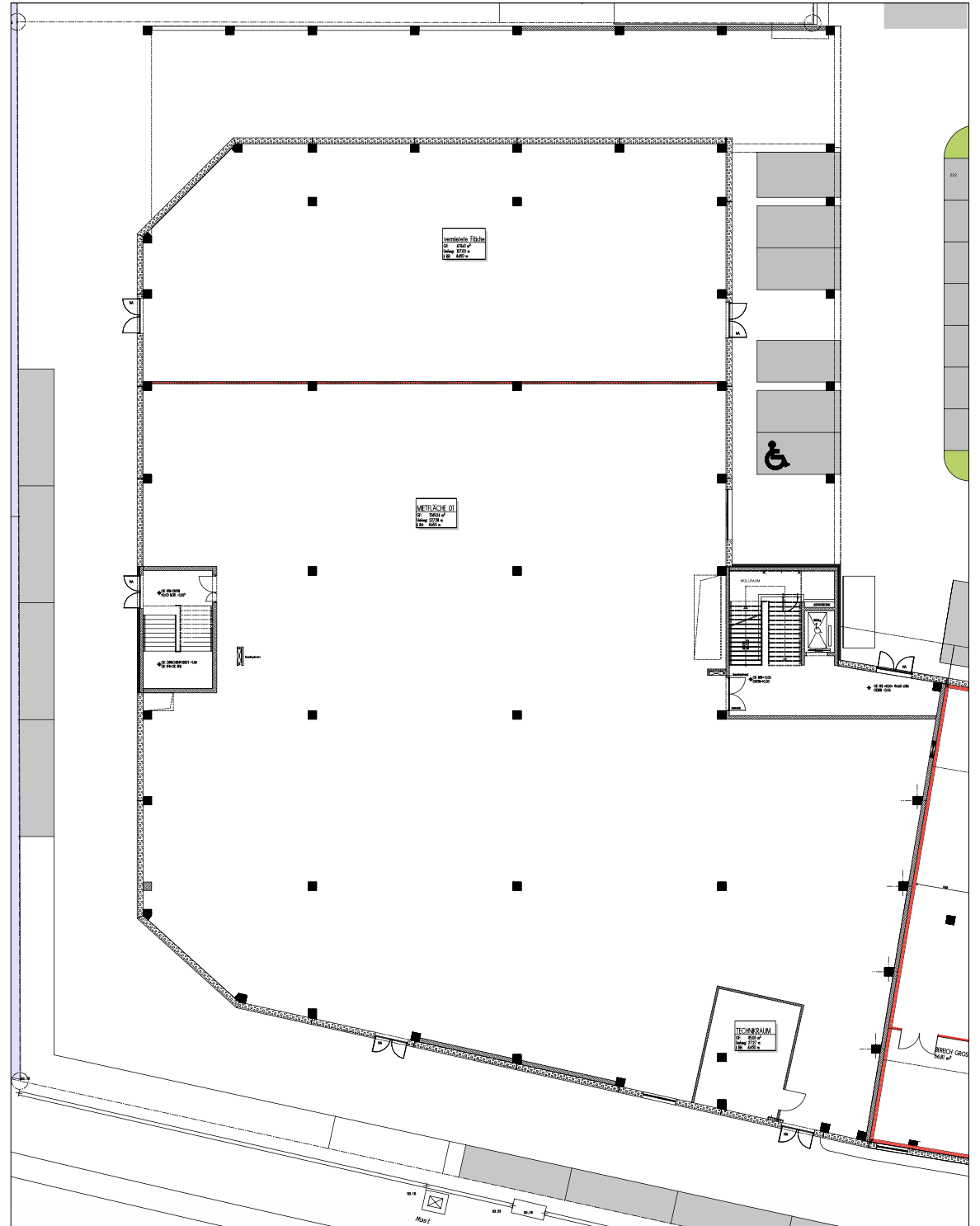
Im Erdgeschoss des Gebäudes steht eine großzügige Mietfläche von etwa 1.600 Quadratmetern zur Verfügung, die aktuell als Spielhalle genutzt wird und vollständig in den veredelten Rohbauzustand zurückgebaut wird. Dieser Zustand bietet Ihnen vielfältige Möglichkeiten, die Fläche nach Ihren individuellen Bedürfnissen zu gestalten und sie optimal an Ihre Anforderungen anzupassen. Die Gewerbeeinheit ist bereits mit einer Deckeninstallation für die technische Ausstattung ausgestattet, was die Integration Ihrer gewünschten Technik erleichtert. Zudem ist das Gebäude an das Fernwärmenetz der Stadt Mannheim angeschlossen, was eine effiziente und nachhaltige Energieversorgung gewährleistet.

Ein separater Anlieferungsbereich hinter dem Gebäude ermöglicht eine flexible Logistikgestaltung, und die Anlieferung kann über verschiedene Hintereingänge erfolgen. Vor dem Gebäude stehen ausreichend Parkplätze zur Verfügung, sodass sowohl Kunden als auch Mitarbeiter bequem anreisen können.

Es ist zu beachten, dass die Nutzungsmöglichkeiten der Mietfläche aufgrund des „Zentrenkonzepts“ der Stadt Mannheim bestimmten Einschränkungen unterliegen. Gerne stellen wir Ihnen detaillierte Informationen zu diesen Einschränkungen zur Verfügung. Die Fläche wird Ihnen in einem flexiblen Zustand übergeben, sodass Sie die Raumaufteilung ganz nach Ihren Wünschen gestalten können. Falls Umbauarbeiten erforderlich sind, kann D&S diese für Sie übernehmen und Ihre individuellen Anforderungen umsetzen.

Ihr persönlicher Kontakt

Julian Benz

Vermietungsmanager

Hauptstandort

Glücksteinallee 69

68163, Mannheim

Profilbild von Julian Benz

Aljoscha Scholl

Managing Director

Hauptstandort

Glücksteinallee 69

68163, Mannheim

Profilbild von Aljoscha Scholl

Bilder

Außenansicht
Luftbild
Objektansicht
Objektansicht
Objektansicht hinten
Lageplan

Merkmale des Objekts

Mobilität

121.1 km zum Flughafen

4.7 km zum Hauptbahnhof

Fahrradstellplätze

ÖPNV direkt vor der Tür

Soziales, Service & Sicherheit

Gastronomie auf dem Gelände

Orte für sozialen Austausch

Energieeffizienz

Fernwärme

PERFEKT ANGEBUNDEN

Casterfeldstraße 52

68199 Mannheim

Mannheim, als eine der größten Städte im Süden Deutschlands, stellt mit seiner zentralen Lage und hervorragenden Anbindung einen bedeutenden Wirtschaftsstandort dar. Die Stadt vereint Industrie, Handel und Dienstleistungen und ist bekannt für ihre Innovationskraft und international ausgerichteten Märkte. Besonders hervorzuheben sind die exzellente Verkehrsinfrastruktur, die Nähe zu wichtigen Wirtschaftszentren wie Frankfurt, Stuttgart und Heidelberg sowie die hohe Lebensqualität, die sowohl für Unternehmen als auch für deren Mitarbeiter attraktiv ist.

Die Casterfeldstraße 54 liegt im Stadtteil Neckarau, einem strategisch günstig gelegenen Gebiet im Süden Mannheims. Diese Lage profitiert von der direkten Anbindung an die B36, einer der wichtigsten Verkehrsachsen der Region, und ermöglicht schnellen Zugang zu den Autobahnen A5 und A6. Durch diese verkehrstechnischen Anbindungen ist der Standort sowohl für Geschäftsreisende als auch für Logistikunternehmen ideal, die eine schnelle Erreichbarkeit der umliegenden Wirtschaftszentren benötigen.

Direkt in der Umgebung der Casterfeldstraße 54 findet sich eine vielfältige Mischung aus Handels- und Gewerbeeinheiten. Der Bereich zeichnet sich durch eine hohe Kundenfrequenz aus, die durch die Vielzahl an Einzelhandelsgeschäften und Dienstleistungsunternehmen in unmittelbarer Nähe weiter verstärkt wird. Die Präsenz von Gastronomiebetrieben sorgt zusätzlich für eine lebendige Atmosphäre, die sowohl für lokale Kunden als auch für Besucher von Bedeutung ist.

Darüber hinaus bieten öffentliche Verkehrsmittel wie Busse und Straßenbahnen eine optimale Anbindung an das Mannheimer Verkehrsnetz und ermöglichen eine schnelle Verbindung zu weiteren Stadtteilen sowie zum Mannheimer Hauptbahnhof. Die gute Erreichbarkeit durch den öffentlichen Nahverkehr stellt sicher, dass die Casterfeldstraße 54 sowohl für Kunden als auch für Mitarbeiter attraktiv bleibt.

Diese Kombination aus hoher Erreichbarkeit, einem dynamischen Umfeld und der Nähe zu bedeutenden Verkehrswegen macht die Casterfeldstraße 54 zu einem erstklassigen Standort für Unternehmen, die eine zentrale Lage in einer wirtschaftlich starken Region suchen.

Hauptgebäude

Casterfeldstraße 52, 68199 Mannheim

2011
Baujahr
3
Etagen
1.600,0 m²
Gesamtmietfläche
Energieausweis
Ansehen

Eigenschaften

Individuell ausbaubar

Ebenerdige Andienung

Hohe Bodentraglast

Mietflächen

1.622,0 m²

Einzelhandel

Handel

Ab 10,00 € pro m²
Mietzins
Ab 3,50 € pro m²
Nebenkosten
Ab sofort
Verfügbar
1.622,0 m²
Handel

Kontaktanfrage

Kontaktieren Sie uns jetzt unverbindlich und unkompliziert.

Profilbild von Julian Benz

Julian Benz

Vermietungsmanager

Profilbild von Aljoscha Scholl

Aljoscha Scholl

Managing Director

Weitere Objekte

SCHOLL Real Estate Solutions GmbH

Die SCHOLL Real Estate Solutions bietet maßgeschneiderte Dienstleistungen für die Vermietung & den Verkauf von Gewerbeimmobilien. Vertrauen auch Sie auf jahrzehntelange Erfahrung aus der Region!